Eigentijds landelijk wonen.
- Inhoud:
- 1011 m3 (excl. veranda)
- Vloeroppervlak (BVO):
- 354 m2
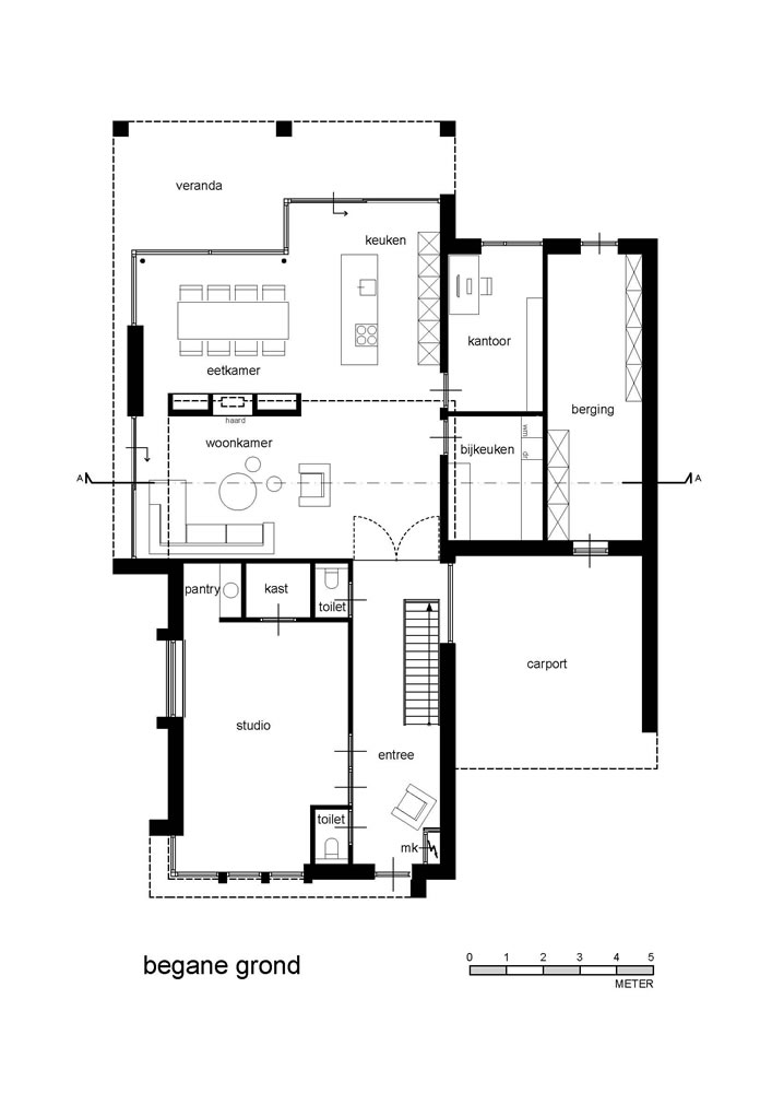
Deze villa is ontworpen in een landelijk eigentijdse architectuur voor het plan ‘Ruimte voor Ruimte’ te Vught. Het materiaal- en kleurgebruik van deze woning zijn afgestemd op de omgeving. De gevels zijn uitgevoerd in wit stucwerk met gevelaccenten van duurzaam hout. De grijze omkaderingen van onderhoudsvrij plaatwerk en de strakke rieten kap met schuine overstekken maken deze villa tot een moderne woning.
Aan de voorzijde van de villa ligt de atelier-/werkruimte die de mogelijkheid biedt om in de toekomst als slaapkamer gebruikt te kunnen worden. Aan de tuinzijde zijn de leefruimtes gesitueerd die zich met grote raampartijen naar het zuidwesten oriënteren. Door de toepassing van glas van vloer tot plafond vloeien binnen- en buitenruimtes in elkaar over. De grote veranda biedt in de zomer schaduw voor de binnenruimtes en creëert aangename extra leefruimte buiten.

In 2021 heeft het blad The Art Of Living een uitgebreid artikel besteed aan deze woning.
Lees hier het artikel. (pdf, 5Mb)