LANDELIJK
landelijke huizen & schuurwoningen
Moderne schuur in staal-skeletbouw
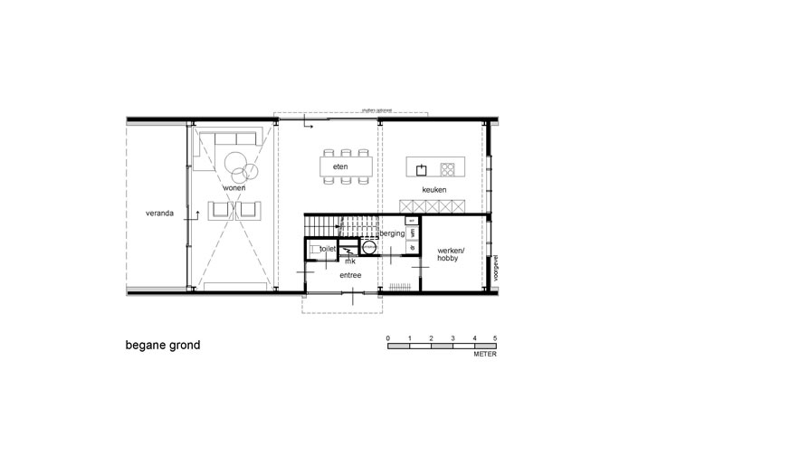
Deze moderne schuurwoning heeft een afmeting van 13,60m x 7,80m tussen de buitenwanden, een goothoogte van 4,00m, een nokhoogte van 8,125m, een BVO (=bruttovloeroppervlak) van 198m2 en een inhoud van 702m3 (exclusief de overstekken van het dak).
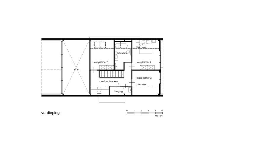
Bij dit ontwerp zijn de lichttoetreding en hoge ruimte kenmerkend en de gevels uitgevoerd met houten delen. Bij de indeling van deze schuurwoning is gekozen om de woonkamer met een vide aan de achterkant te plaatsen en de woonkeuken met een ruim kookeiland aan de voorzijde van de woning. Door de glazen pui met vide aan de achterzijde van de woning ontstaat er een fraaie leefruimte met veel daglicht. Op de verdieping bevinden zich tevens drie slaapkamers en een badkamer.
Deze schuurwoning heeft als basis één volume, zonder uitbouwen, met een kap. De constructie is van stalen spanten of een staal-skelet-bouwsysteem met wanden en daken van sandwichpanelen. Het bouwconcept heeft een vrije overspanning, zodat de plattegronden vrij indeelbaar zijn. Vele indelingen zijn mogelijk, zoals een vide/loft en eventueel een levensloopbestendige indeling met slaapkamer op de begane grond. Samen met u als opdrachtgever worden de plannen op maat uitgewerkt. Bij een staal-skelet-bouw-woning geldt in principe ‘ruwbouw is afbouw’, maar ook een luxer afwerkingsniveau aan de binnenzijde is een optie.
STAAL-SKELETBOUW-SYSTEEM
Bij een staal-skelet-bouw-woning is de constructie van staal met gevels en daken van sandwichpanelen. Voor de gevel- en dakafwerking kan gekozen worden uit vele materialen, waardoor men een persoonlijke stijl voor de woning kan kiezen aan de buitenzijde. Tevens is een industriële uitstraling met het principe “ruwbouw is afbouw” kenmerkend. Een staal-skelet-bouw-woning is een slimme, economische en energieneutrale woning met een korte bouwtijd.
Deit type woning heeft als bouwconcept een vrije overspanning, waardoor er een uniek plan op maat uitgewerkt kan worden. Vele indelingen zijn mogelijk, zoals een ruime leefruimte met een vide/loft of een levensloopbestendige indeling met slaapkamer op de begane grond.
Technische Kenmerken
Fundering: beton, zo nodig met paalfundering
Begane grond: geïsoleerde kanaalplaatvloer (prefab beton)
Constructie: stalen spanten of staal-skelet bouwsysteem
Verdiepingsvloer: kanaalplaatvloer (prefab beton)
Gevel en dak: sandwichpanelen
Gevelafwerking: vele keuzemogelijkheden, een metaalplaat in kleur is de meest economische keuze, houten delen of onderhoudsvrije beplating, zelfs gevelstenen zijn mogelijk.
Hellende daken: standaard afgewerkt met metaalplaat, ook dakpannen of leien zijn mogelijk
Platte daken: kunststof dakbedekking met lange levensduur
Kozijnen, ramen en deuren: aluminium met naar keuze dubbel of triple-glas
Binnenwanden: metal stud (gipsplaat afwerking)
Energie
De woning voldoet tenminste aan de eisen van het bouwbesluit en kan naar wens heel veel energiezuiniger uitgevoerd worden.
Goed isolerende sandwichpanelen voor gevel en dak
Luchtdichte aansluitingen
Kozijnen met dubbel of triple-beglazing naar keuze
Zonnepanelen: geïntegreerd in het hellend dak of op het plat dak verborgen achter de dakrand.
Installaties zijn in ieder gewenst niveau te integreren, afhankelijk van budget en ambities.
Kosten
Door de slimme industriële bouwwijze blijven de bouwkosten laag en het kwaliteitsniveau hoog
De korte bouwtijd reduceert de tijdelijke dubbele lasten.
De lichte bouwconstructie bespaart op funderingskosten, omdat een eenvoudige fundering toegepast kan worden.
Op voorhand is een vaste prijs niet te geven, omdat iedere woning maatwerk is en de bouwprijzen op moment in deze markt nogal veel veranderen.
Deze moderne schuurwoning heeft een afmeting van 13,60m x 7,80m tussen de buitenwanden, een goothoogte van 4,00m, een nokhoogte van 8,125m, een BVO (=bruttovloeroppervlak) van 198m2 en een inhoud van 702m3 (exclusief de overstekken van het dak).
Bij dit ontwerp zijn de lichttoetreding en hoge ruimte kenmerkend en de gevels uitgevoerd met houten delen. Bij de indeling van deze schuurwoning is gekozen om de woonkamer met een vide aan de achterkant te plaatsen en de woonkeuken met een ruim kookeiland aan de voorzijde van de woning. Door de glazen pui met vide aan de achterzijde van de woning ontstaat er een fraaie leefruimte met veel daglicht. Op de verdieping bevinden zich tevens drie slaapkamers en een badkamer.
Deze schuurwoning heeft als basis één volume, zonder uitbouwen, met een kap. De constructie is van stalen spanten of een staal-skelet-bouwsysteem met wanden en daken van sandwichpanelen. Het bouwconcept heeft een vrije overspanning, zodat de plattegronden vrij indeelbaar zijn. Vele indelingen zijn mogelijk, zoals een vide/loft en eventueel een levensloopbestendige indeling met slaapkamer op de begane grond. Samen met u als opdrachtgever worden de plannen op maat uitgewerkt. Bij een staal-skelet-bouw-woning geldt in principe ‘ruwbouw is afbouw’, maar ook een luxer afwerkingsniveau aan de binnenzijde is een optie.
STAAL-SKELETBOUW-SYSTEEM
Bij een staal-skelet-bouw-woning is de constructie van staal met gevels en daken van sandwichpanelen. Voor de gevel- en dakafwerking kan gekozen worden uit vele materialen, waardoor men een persoonlijke stijl voor de woning kan kiezen aan de buitenzijde. Tevens is een industriële uitstraling met het principe “ruwbouw is afbouw” kenmerkend. Een staal-skelet-bouw-woning is een slimme, economische en energieneutrale woning met een korte bouwtijd.
Deit type woning heeft als bouwconcept een vrije overspanning, waardoor er een uniek plan op maat uitgewerkt kan worden. Vele indelingen zijn mogelijk, zoals een ruime leefruimte met een vide/loft of een levensloopbestendige indeling met slaapkamer op de begane grond.
Technische Kenmerken
Fundering: beton, zo nodig met paalfundering
Begane grond: geïsoleerde kanaalplaatvloer (prefab beton)
Constructie: stalen spanten of staal-skelet bouwsysteem
Verdiepingsvloer: kanaalplaatvloer (prefab beton)
Gevel en dak: sandwichpanelen
Gevelafwerking: vele keuzemogelijkheden, een metaalplaat in kleur is de meest economische keuze, houten delen of onderhoudsvrije beplating, zelfs gevelstenen zijn mogelijk.
Hellende daken: standaard afgewerkt met metaalplaat, ook dakpannen of leien zijn mogelijk
Platte daken: kunststof dakbedekking met lange levensduur
Kozijnen, ramen en deuren: aluminium met naar keuze dubbel of triple-glas
Binnenwanden: metal stud (gipsplaat afwerking)
Energie
De woning voldoet tenminste aan de eisen van het bouwbesluit en kan naar wens heel veel energiezuiniger uitgevoerd worden.
Goed isolerende sandwichpanelen voor gevel en dak
Luchtdichte aansluitingen
Kozijnen met dubbel of triple-beglazing naar keuze
Zonnepanelen: geïntegreerd in het hellend dak of op het plat dak verborgen achter de dakrand.
Installaties zijn in ieder gewenst niveau te integreren, afhankelijk van budget en ambities.
Kosten
Door de slimme industriële bouwwijze blijven de bouwkosten laag en het kwaliteitsniveau hoog
De korte bouwtijd reduceert de tijdelijke dubbele lasten.
De lichte bouwconstructie bespaart op funderingskosten, omdat een eenvoudige fundering toegepast kan worden.
Op voorhand is een vaste prijs niet te geven, omdat iedere woning maatwerk is en de bouwprijzen op moment in deze markt nogal veel veranderen.








