LANDELIJK
landelijke huizen & schuurwoningen
Stalen schuurwoning
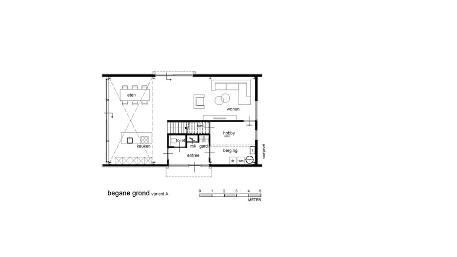
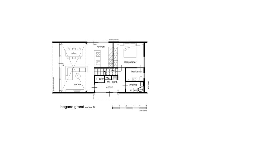
Deze stalen schuurwoning is een goed doordachte eigentijdse schuurwoning met een stalen bouwsysteem met tevens geheel vrij indeelbare plattegronden. Deze schuurwoning heeft een afmeting van 12,00m x 7,20m tussen de buitenwanden, een goothoogte van 4,00m, een nokhoogte van 7,80m, een BVO (=bruttovloeroppervlak) van 160m2 en een inhoud van 557m3 (exclusief de overstekken van het dak).
Door de glazen vliesgevel met vide aan de achterzijde van de woning ontstaat er een fraaie leefruimte met veel daglicht. De vide schept een gevoel van ruimte en staat in open verbinding met de galerij en de overloop op de verdieping. Hier is een werkplek gedacht. Op de verdieping bevinden zich tevens twee extra slaapkamers en een badkamer. De ruime overstek aan de achtergevel met zonweringslamellen en de schuiflamellen in de zijgevel geven de woning meer uitstraling. Een zoldervloer is ook mogelijk. De voordeur is van een luifel voorzien. De indelingen van deze schuurwoning is zo ontworpen dat men op een later tijdstip met relatief weinig aanpassingen de woning levensloopbestendig kan maken.
Technische Kenmerken
Fundering: beton, zo nodig met paalfundering
Begane grond: geïsoleerde kanaalplaatvloer (prefab beton)
Constructie: stalen spanten of staal-skelet bouwsysteem
Verdiepingsvloer: kanaalplaatvloer (prefab beton)
Gevel en dak: sandwichpanelen
Gevelafwerking: vele keuzemogelijkheden, een metaalplaat in kleur is de meest economische keuze, houten delen of onderhoudsvrije beplating, zelfs gevelstenen zijn mogelijk.
Hellende daken: standaard afgewerkt met metaalplaat, ook dakpannen of leien zijn mogelijk
Platte daken: kunststof dakbedekking met lange levensduur
Kozijnen, ramen en deuren: aluminium met naar keuze dubbel of triple-glas
Dakramen: Velux-ramen
Binnenwanden: metal stud (gipsplaat afwerking)
Energie
De woning voldoet tenminste aan de eisen van het bouwbesluit en kan naar wens heel veel energiezuiniger uitgevoerd worden.
Goed isolerende sandwichpanelen voor gevel en dak
Luchtdichte aansluitingen
Kozijnen met dubbel of triple-beglazing naar keuze
Zonnepanelen: geïntegreerd in het hellend dak of op het plat dak verborgen achter de dakrand.
Installaties zijn in ieder gewenst niveau te integreren, afhankelijk van budget en ambities.
Kosten
Door de slimme industriële bouwwijze blijven de bouwkosten laag en het kwaliteitsniveau hoog
De korte bouwtijd reduceert de tijdelijke dubbele lasten.
De lichte bouwconstructie bespaart op funderingskosten, omdat een eenvoudige fundering toegepast kan worden.
Op voorhand is een vaste prijs niet te geven, omdat iedere woning maatwerk is en de bouwprijzen op het moment in deze markt nogal veel veranderen.
Deze stalen schuurwoning is een goed doordachte eigentijdse schuurwoning met een stalen bouwsysteem met tevens geheel vrij indeelbare plattegronden. Deze schuurwoning heeft een afmeting van 12,00m x 7,20m tussen de buitenwanden, een goothoogte van 4,00m, een nokhoogte van 7,80m, een BVO (=bruttovloeroppervlak) van 160m2 en een inhoud van 557m3 (exclusief de overstekken van het dak).
Door de glazen vliesgevel met vide aan de achterzijde van de woning ontstaat er een fraaie leefruimte met veel daglicht. De vide schept een gevoel van ruimte en staat in open verbinding met de galerij en de overloop op de verdieping. Hier is een werkplek gedacht. Op de verdieping bevinden zich tevens twee extra slaapkamers en een badkamer. De ruime overstek aan de achtergevel met zonweringslamellen en de schuiflamellen in de zijgevel geven de woning meer uitstraling. Een zoldervloer is ook mogelijk. De voordeur is van een luifel voorzien. De indelingen van deze schuurwoning is zo ontworpen dat men op een later tijdstip met relatief weinig aanpassingen de woning levensloopbestendig kan maken.
Technische Kenmerken
Fundering: beton, zo nodig met paalfundering
Begane grond: geïsoleerde kanaalplaatvloer (prefab beton)
Constructie: stalen spanten of staal-skelet bouwsysteem
Verdiepingsvloer: kanaalplaatvloer (prefab beton)
Gevel en dak: sandwichpanelen
Gevelafwerking: vele keuzemogelijkheden, een metaalplaat in kleur is de meest economische keuze, houten delen of onderhoudsvrije beplating, zelfs gevelstenen zijn mogelijk.
Hellende daken: standaard afgewerkt met metaalplaat, ook dakpannen of leien zijn mogelijk
Platte daken: kunststof dakbedekking met lange levensduur
Kozijnen, ramen en deuren: aluminium met naar keuze dubbel of triple-glas
Dakramen: Velux-ramen
Binnenwanden: metal stud (gipsplaat afwerking)
Energie
De woning voldoet tenminste aan de eisen van het bouwbesluit en kan naar wens heel veel energiezuiniger uitgevoerd worden.
Goed isolerende sandwichpanelen voor gevel en dak
Luchtdichte aansluitingen
Kozijnen met dubbel of triple-beglazing naar keuze
Zonnepanelen: geïntegreerd in het hellend dak of op het plat dak verborgen achter de dakrand.
Installaties zijn in ieder gewenst niveau te integreren, afhankelijk van budget en ambities.
Kosten
Door de slimme industriële bouwwijze blijven de bouwkosten laag en het kwaliteitsniveau hoog
De korte bouwtijd reduceert de tijdelijke dubbele lasten.
De lichte bouwconstructie bespaart op funderingskosten, omdat een eenvoudige fundering toegepast kan worden.
Op voorhand is een vaste prijs niet te geven, omdat iedere woning maatwerk is en de bouwprijzen op het moment in deze markt nogal veel veranderen.











