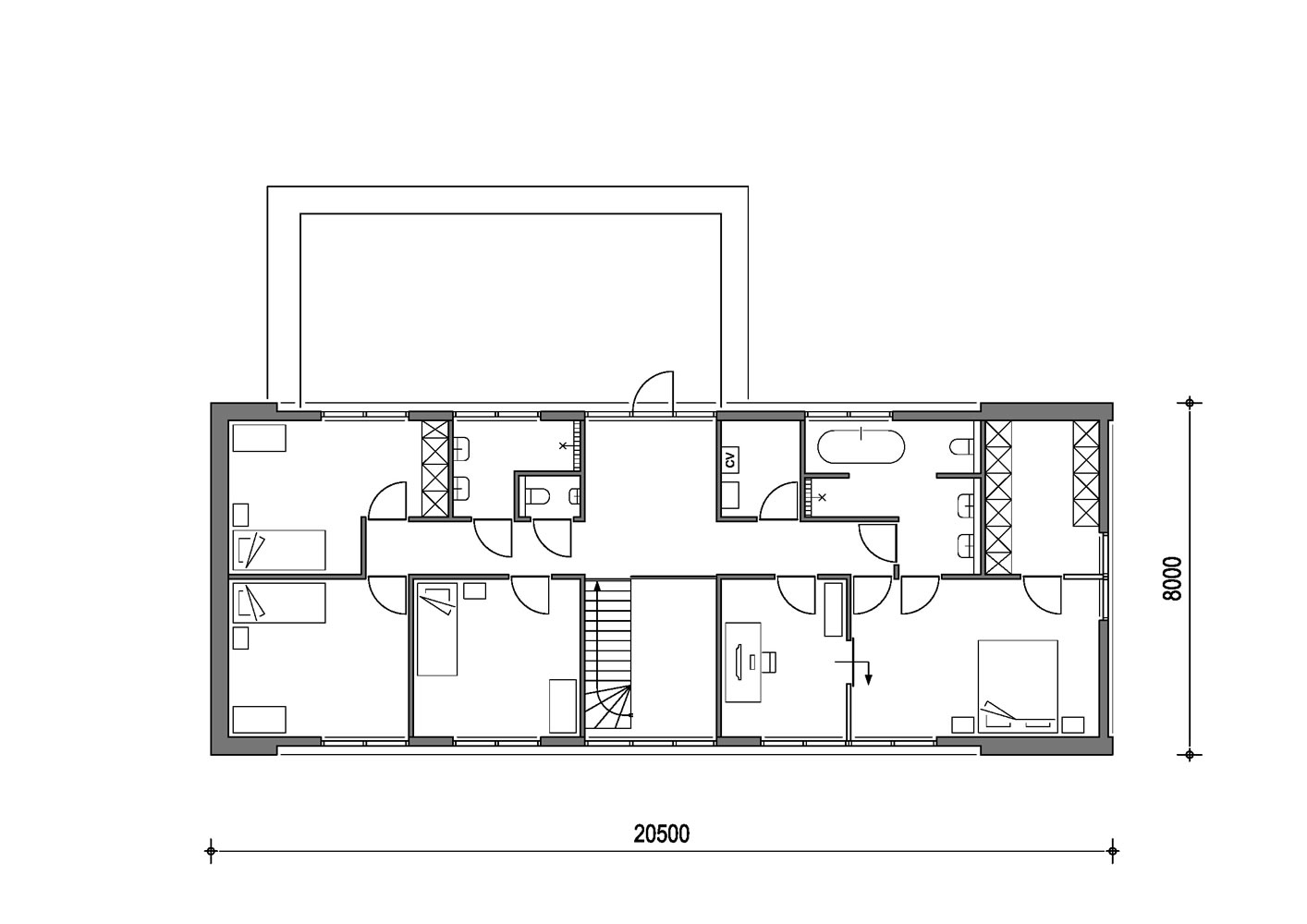
Villa te Utrecht.
- Inhoud:
- 1014 m3
- Vloeroppervlak (BVO):
- 338 m2
Moderne woning met een stoer karakter. Strakke vormgeving met krachtige uitstraling door het gebruik van robuuste materialen. Prefab beton en onderhoudsarme gevelbekleding met houtmotief benadrukken het ontwerp.
Door de rechte lijnen van de villa kunnen de woonoppervlaktes zowel binnen als buiten optimaal worden benut. De moderne architectuur wordt doorgezet in de tuin met een ingetogen en parkachtige sfeerbeleving.





