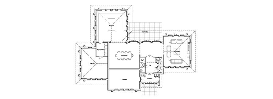
Amerikaanse villa.
- Inhoud:
- 1650 m3 (excl. kelder)
- Vloeroppervlak (BVO):
- 478 m2 (excl. kelder)
Het ontwerp is tot stand gekomen in nauwe samenwerking met de opdrachtgevers. Door hun vele reizen waren zij erg gecharmeerd geraakt van deze Amerikaanse woningbouwstijl en wilden die graag terugzien in hun nieuwe woning. Niet alleen de karakteristieke buitenzijde, maar ook de authentieke Amerikaanse indeling met een riante hal centraal gelegen in de woning laten zien dat het hier gaat om een rasechte Amerikaan!




